関市東町分譲 A棟

| 区 分 |
|
|---|---|
| 価 格 | 3,160 万円(税込) |
| 所在地 |
関市東町1丁目 ≫Googleマップで見る |
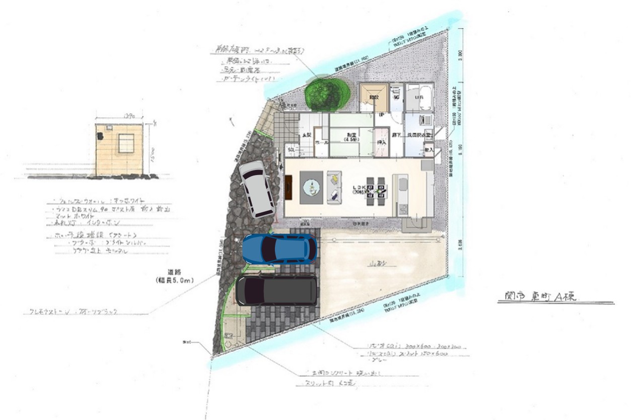
| 敷地面積 | 199.71m²(60.41 坪 ) |
| 延床面積 | 127.53m²(38.57 坪) |
| 登録・更新日 | 2025年04月07日 |
| 販売状況 | 販売中 |
| 仲介手数料 | 不要(売主のため) |
全3区画 5LDK分譲住宅+プレミアム外構
長期優良住宅・耐震等級3・駐車3台可
2階の多目的部屋が子供部屋・物干し部屋・書斎等自由な使い方ができます。
下記にて建物内覧動画を公開中です。
長期優良住宅・耐震等級3・駐車3台可
2階の多目的部屋が子供部屋・物干し部屋・書斎等自由な使い方ができます。
下記にて建物内覧動画を公開中です。
Moving image
フォームでお問い合わせ
お問い合わせフォーム| 交 通 | 岐阜バス「東町」停まで0.3km |
|---|---|
| 周辺環境 | 旭ヶ丘小学校:1.0km 旭ヶ丘中学校:0.8km 関保育園:0.9km ゲンキー西本郷店:1.3km バロー関ひがし店:2.0km ファミリーマート関円保通店:0.7km 下條内科クリニック:0.6km 高速バス「中池公園口」停:0.3km 長良川鉄道「関口」駅:1.3km |
| 建ぺい率 ・容積率 |
建ぺい率60%・容積率200% |
| 都市計画 | 未線引区域 |
| 用途地域 | 第一種住居住居地域 |
| 防火指定 | 法22条区域 |
| 確認番号 | 確認サービス第 KS123-0410-52447号 |
| 築年月 | 令和5年9月完成 |
| 接道状況 | 北側道路6.0m、西側道路5.0m |
| 設 備 |
上下水道・中部電力・オール電化仕様 食器洗い乾燥機 カップボード 浴室暖房乾燥機 エアコン1台(LDK用) 宅配ボックス 玄関リモコンキー アルゴンガス入りLow-E複層ガラス |
| その他 | 給排水負担金として50万円必要になります。 |
フォームでお問い合わせ
お問い合わせフォーム- PREV
- LINE UP LIST
- NEXT










