一宮市木曽川町黒田分譲 B棟

| 区 分 |
|
|---|---|
| 価 格 | 3,960 万円(税込) |
| 所在地 |
一宮市木曽川町黒田字北沼10番 ≫Googleマップで見る |
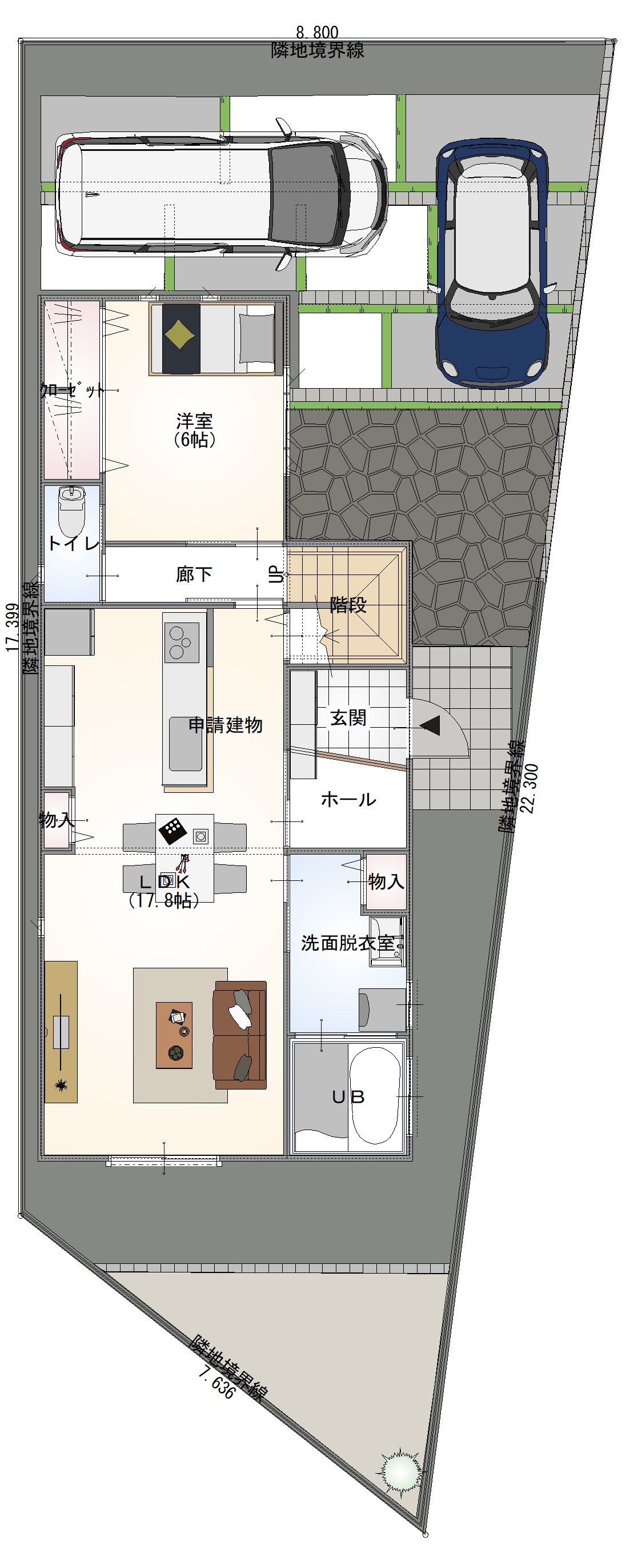
| 敷地面積 | 161.23m²(48.77 坪 ) |
| 延床面積 | 115.94m²(35.07 坪) |
| 登録・更新日 | 2025年04月28日 |
| 販売状況 | 販売中 |
| 仲介手数料 | 不要(売主のため) |
~5LDK+駅近~
長期優良住宅・耐震等級3・駐車2台可
名鉄黒田駅まで徒歩4分、JR木曽川駅まで徒歩9分と好立地の5LDK分譲住宅です。
長期優良住宅・耐震等級3・駐車2台可
名鉄黒田駅まで徒歩4分、JR木曽川駅まで徒歩9分と好立地の5LDK分譲住宅です。
Moving image
フォームでお問い合わせ
お問い合わせフォーム| 交 通 | 名鉄名古屋本線「黒田駅」まで徒歩4分(300m) JR東海道本線「木曽川駅」まで徒歩9分(650m) |
|---|---|
| 周辺環境 | 黒田小学校:1.0km 木曽川中学校:1.2km 黒田西保育園:0.5km イオンモール木曽川:0.1km 平和堂木曽川店:0.4km Vドラッグ木曽川店:1.1km ファミリーマート一宮黒田店:0.7km こざわクリニック:0.4km 名鉄「黒田」駅:0.3km JR「木曽川」駅:0.7km |
| 建ぺい率 ・容積率 |
建ぺい率60%・容積率200% |
| 都市計画 | 市街化区域 |
| 用途地域 | 準工業地域 |
| 防火指定 | 法22条区域 |
| 確認番号 | 確認サービス第 KS124-0410-53889号 |
| 築年月 | 令和6年11月完成 |
| 接道状況 | 南側道路8.2m 東側道路4.0m |
| 設 備 |
上下水道・中部電力・オール電化仕様 ステンレスキッチン(クリナップ) 食器洗い乾燥機 カップボード 浴室暖房乾燥機 エアコン1台(LDK用) 宅配ボックス 玄関ファミロックタグキー アルゴンガス入りLow-E複層ガラス |
| その他 |
給排水負担金として60万円必要となります。 景観法 |
フォームでお問い合わせ
お問い合わせフォーム- PREV
- LINE UP LIST
- NEXT










