一宮市野口分譲 A棟

| 区 分 |
|
|---|---|
| 価 格 | 4,980 万円(税込) |
| 所在地 |
一宮市野口2丁目12番2他 ≫Googleマップで見る |
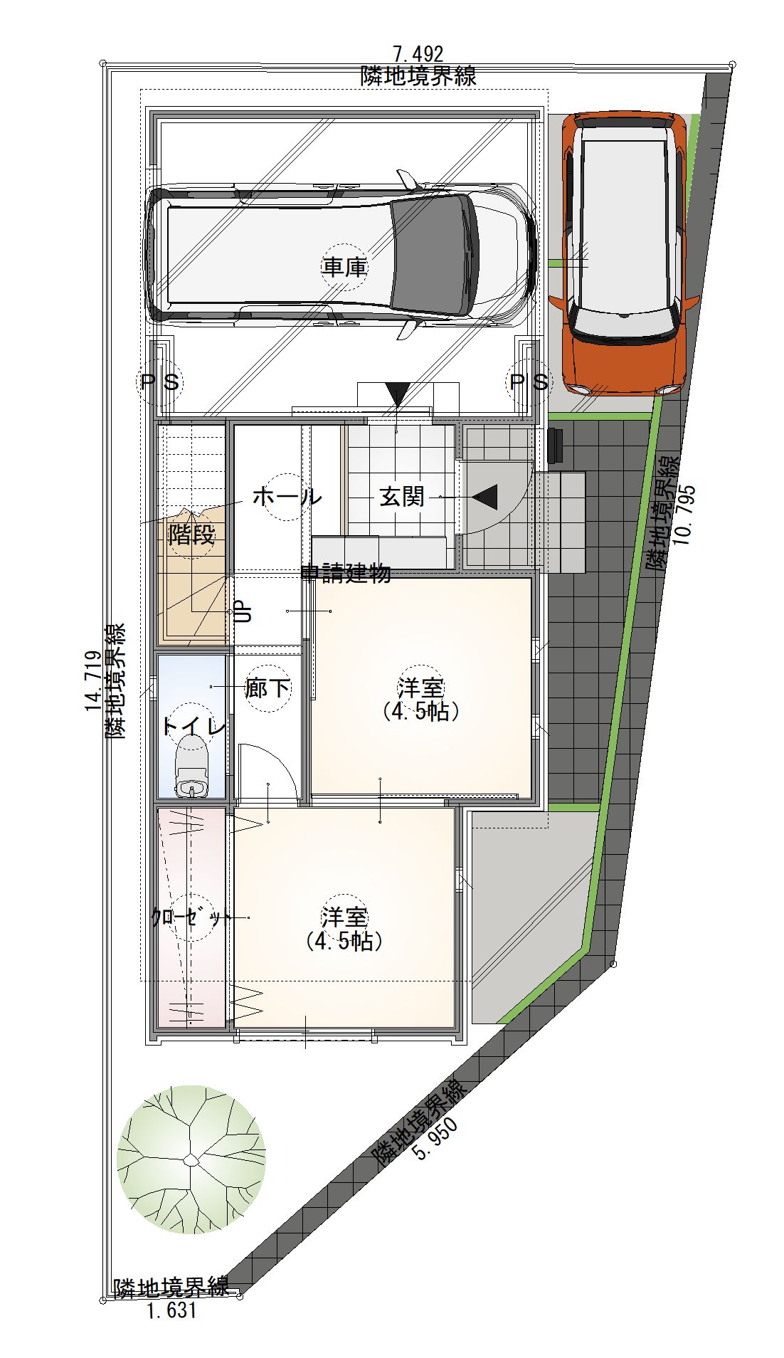
| 敷地面積 | 87.89m²(26.58 坪 ) |
| 延床面積 | 134.16m²(40.58 坪) |
| 登録・更新日 | 2025年08月08日 |
| 販売状況 | 販売中 |
| 仲介手数料 | 不要(売主のため) |
~5LDK+駅近~
長期優良住宅・耐震等級3・駐車2台可
名鉄一宮駅まで徒歩9分、JR尾張一宮駅まで徒歩10分と好立地の5LDK分譲住宅です。
長期優良住宅・耐震等級3・駐車2台可
名鉄一宮駅まで徒歩9分、JR尾張一宮駅まで徒歩10分と好立地の5LDK分譲住宅です。
Moving image
フォームでお問い合わせ
お問い合わせフォーム| 交 通 | 名鉄名古屋本線「名鉄一宮駅」まで徒歩9分(700m) JR東海道本線「尾張一宮駅」まで徒歩10分(800m) |
|---|---|
| 周辺環境 | 末広小学校:0.6km 中部中学校:1.3km 野口保育園:0.3km カネスエ新生店:0.3km ドラッグスギヤマ住吉店:0.4km セブンイレブン一宮新生2丁目店:0.4km 富田医院:0.3km |
| 建ぺい率 ・容積率 |
建ぺい率80%・容積率200% |
| 都市計画 | 市街化区域 |
| 用途地域 | 近隣商業地域 |
| 防火指定 | 準防火地域 |
| 確認番号 | 第25WHEC確建三00073号 |
| 築年月 | 令和7年9月完成 |
| 接道状況 | 南側道路18.0m 東側道路18.0m |
| 設 備 |
上下水道・中部電力・都市ガス仕様 ステンレスキッチン(クリナップ) 食器洗い乾燥機 カップボード 浴室暖房乾燥機 エアコン1台(LDK用) 宅配ボックス 玄関ファミロックタグキー アルゴンガス入りLow-E複層ガラス |
| その他 |
給排水負担金として77万円必要となります。 景観法 |
フォームでお問い合わせ
お問い合わせフォーム- PREV
- LINE UP LIST
- NEXT










